Wohnanlage Hewenblick, Engen
Neubau von 20 attraktiven Eigentumswohnungen
In ruhiger Wohnlage entstehen hier insgesamt 20 Neubauwohnungen in zwei Häusern mitten im Grünen. In beiden Häusern entstehen einzigartige Eigentumswohnungen von ca. 55 qm bis 128 qm als 2-,3-,4-Zimmer sowie Penthouse-Wohnungen.
Durch die Ausrichtung der Wohnungen nach Süden entstehen in allen Wohnungen helle und freundliche Räume. Die Wohnhäuser zeichnen sich durch eine exklusive Aussicht auf die wunderschöne Altstadt von Engen aus. Neben einer exzellenten Verkehrsanbindung sind zahlreiche Einkaufmöglichkeiten in nur wenigen Minuten zu Fuß zu erreichen.
- Effizienzhaus-55
- große Balkone + Terrassen
- Aufzug und Tiefgarage
- Modernes Wohnen
- Regenerative Heizenergie
- Stadtnahe Lage
Visualisierungen

Haus B - Perspektive Süden

Haus B - Perspektive Süd-Osten

Wohnanlage Hewenblick - Perspektive Hewenstraße

Wohnanlage Hewenblick - Perspektive Hewenstraße 2
Grundrisse und Ansichten

Haus A - Ansicht Süden

Haus B - Ansicht Süden

Wohnanlage Hewenblick - Ansicht Osten

Wohnanlange Hewenblick - Ansicht Westen

Haus A - Ansicht Norden

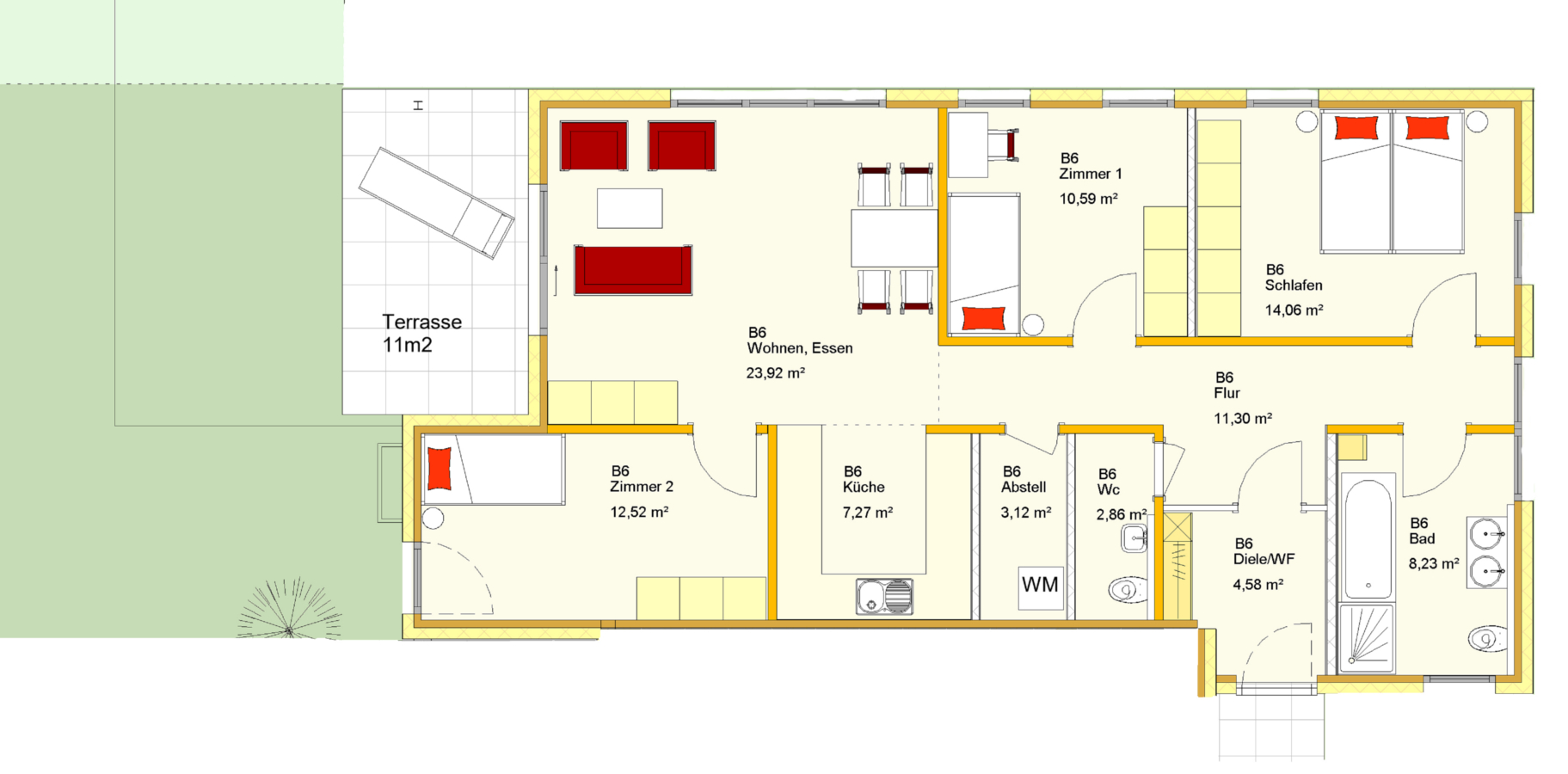
Grundriss Wohnung B6

Grundriss Wohnung A2

Grundriss Wohnung A5

Grundriss Wohnung A7

Grundriss Wohnung B7
Bautagebuch
Anhand des Bautagebuchs können Sie ab Baubeginn den aktuellen Baufortschritt verfolgen.

Außenfassade Haus A - 01.10.2020

Außenfassade Haus A - 01.10.2020

Blick ins Grüne - Balkone Haus A - 20.09.2020

Innenausbau Haus A - 09.09.2020

Außenputz Haus A - 01.06.2020

Außenputz Haus A - 08.05.2020

Aufrichten Haus B PH2 - 04.05.2019

Aufrichten Haus B PH2 - 04.05.2019

Aufrichten Haus B PH2 - 04.05.2019

Aufrichten Haus B PH2 - 04.05.2019

Aufrichten Haus B - 13.12.2019

Aufrichten Haus B - 12.12.2019

Aufrichten Haus B - 07.12.2019

Panorama PH1 Haus A - 11.11.19

Holzschalung Haus A - 11.11.2019

Panorama PH1 Haus A - 11.11.19

Baugrube Haus B - 01.07.19

Baugrube Haus B - 01.07.19

Baustelle Hewenblick - 01.08.2019

Wohnanlage Hewenblick - Anlieferung Beton - 17.05.2019

Betonieren der TG Decke - Haus A - 17.05.2019

TG Decke - Haus A - 16.05.2019

Betonieren der TG Wände - 06.04.2019

Betonieren der TG Wände - 06.04.2019

Spatenstich mit Bürgermeister Moser und Verantwortlichen - 22.01.2019 - (Urheberrecht Hegaukurier Engen)

Baustellenvorbereitung - 18.01.2019

Außenfassade Haus A - 01.10.2020
1
Außenfassade Haus A - 01.10.2020
2
Blick ins Grüne - Balkone Haus A - 20.09.2020
3
Innenausbau Haus A - 09.09.2020
4
Außenputz Haus A - 01.06.2020
5
Außenputz Haus A - 08.05.2020
6
Aufrichten Haus B PH2 - 04.05.2019
7
Aufrichten Haus B PH2 - 04.05.2019
8
Aufrichten Haus B PH2 - 04.05.2019
9
Aufrichten Haus B PH2 - 04.05.2019
10
Aufrichten Haus B - 13.12.2019
11
Aufrichten Haus B - 12.12.2019
12
Aufrichten Haus B - 07.12.2019
13
Panorama PH1 Haus A - 11.11.19
14
Holzschalung Haus A - 11.11.2019
15
Panorama PH1 Haus A - 11.11.19
16
Rohbau Haus A - 01.10.19
18
Rohbau Haus A - 01.10.19
19
Baugrube Haus B - 01.07.19
20
Baugrube Haus B - 01.07.19
21
Baustelle Hewenblick - 01.08.2019
22
Wohnanlage Hewenblick - Anlieferung Beton - 17.05.2019
23
Betonieren der TG Decke - Haus A - 17.05.2019
24
TG Decke - Haus A - 16.05.2019
25
Betonieren der TG Wände - 06.04.2019
26
Betonieren der TG Wände - 06.04.2019
27
Spatenstich mit Bürgermeister Moser und Verantwortlichen - 22.01.2019 - (Urheberrecht Hegaukurier Engen)
28
Baustellenvorbereitung - 18.01.2019
29
Lage