Architekturbüro
Diese Webseite verwendet Cookies. Durch die Nutzung der Webseite stimmen Sie der Verwendung von Cookies zu.

Wohnhaus

Neubau in Volkertshausen mit 4 Wohnungen

Galerie
Untergeschoss
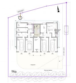
Lageplan
 

Pläne und Ansichten

Neubau in Volkertshausen
Erdgeschoss
Dachgeschoss
 
Galerie
Untergeschoss
Lageplan
 

Weitere Informationen über dieses Projekt natürlich bei uns!

 
 

Dieter Heller - Dipl. Ing. (FH) Freier Architekt   |   Breitestraße 21  |  78234 Engen  |  Telefon: 07733 5408